Logo Loïc Muriel

Loïc MURIEL

HG LC I

Aménagement d'espaces d'accueil

Cointrin, Genève

janvier 2024

pour Hospice général, Genève

avec Pauline Duvillard _ Collaboratrice

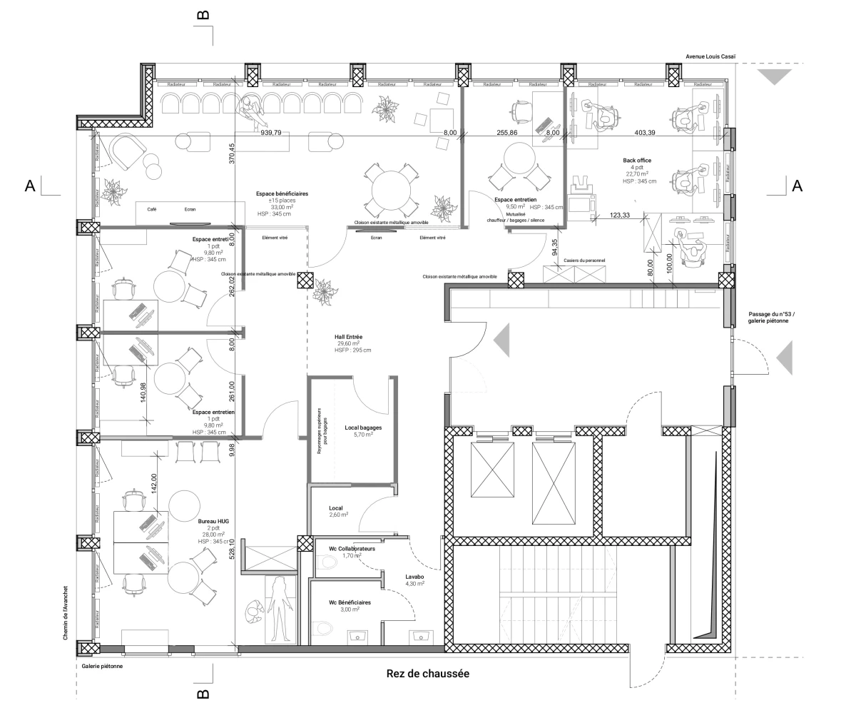
Projections et réalisation rapide d’un espace d’accueil et d’entretiens pour l’Hospice général

Le site de Cointrin accueille une forte affluence de personnes, nécessitant une augmentation rapide des surfaces d’accueil pour l’institution. Le nouvel aménagement permet d’accueillir jusqu’à 15 collaborateurs.

Les espaces se composent de salles d’entretiens, de surfaces administratives pour huit collaborateurs, ainsi que d’un espace d’attente fonctionnel, optimisant à la fois la circulation et le confort des usagers.